Área do Cliente
|
Acesse pelo celular

Casa em condomínio para venda no bairro Loteamento Floresta em São José dos Campos

Casa Condomínio - Loteamento Floresta Residencial para Venda em São José dos Campos

|
Compartilhe:
Total para Acessórios valores sujeitos a alteração.

Condomínio
1,11

IPTU
1,11
Total para Acessórios valores sujeitos a alteração.

Venda

(ITBI, Registro, Escritura e Certidões)
Consulte-nos
Residencial
Finalidade
6184
Referência
3
Dormitórios
1
Suite
2
Banheiros
1
Garagem
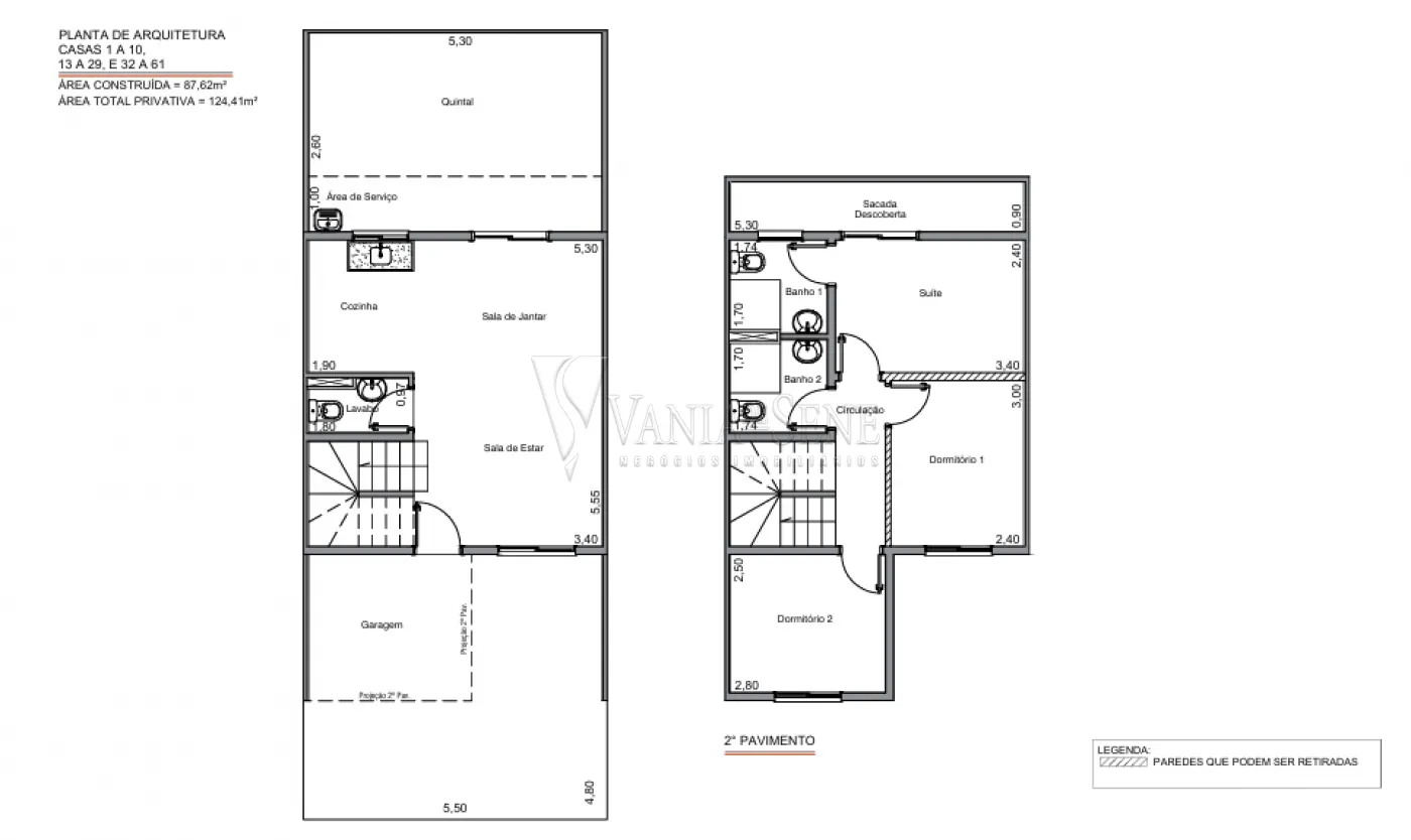
124.00 m²
A. Terreno
87.62 m²
A. Construída
Descrição do Imóvel

Excelente oportunidade para quem busca segurança, conforto e qualidade de vida em um condomínio novo, localizado em uma região em crescimento na zona norte de São José dos Campos.

Esta casa em condomínio é ideal para famílias que desejam morar com tranquilidade, em um ambiente organizado e com boa valorização imobiliária.

O imóvel conta com:

3 quartos, sendo 1 suíte
1 banheiro social
Sala de estar
Cozinha
Área de serviço
2 vagas de garagem
Área construída: 87,62 m²
Área do terreno: 124,00 m²

A casa possui uma planta bem distribuída, com ambientes funcionais que proporcionam conforto e praticidade no dia a dia. A suíte garante mais privacidade ao casal, enquanto os outros quartos podem ser utilizados como dormitórios, escritório ou espaço multiuso.

Por estar localizada em um condomínio novo, o imóvel oferece um ambiente mais moderno, organizado e com maior sensação de segurança, ideal para quem busca tranquilidade para a família.

A área interna permite boa circulação e aproveitamento dos espaços, com possibilidade de personalização conforme o estilo do morador.

Outro grande diferencial é a localização, situada no bairro Loteamento Floresta, uma região com fácil acesso a vias importantes, além de estar próxima a comércios, escolas e serviços essenciais, garantindo praticidade na rotina.

A combinação entre condomínio novo, boa localização e custo-benefício torna este imóvel uma excelente opção tanto para moradia quanto para investimento.

Itens do Imóvel

Wc Social : 1

Itens do Condomínio Casa Villa Floresta 1

Informações
Ano de Construção: 2026
Segurança
Portaria: 1
Utilitários
Medidor de Água Individual
Portão Eletrônico

Panorâmica

Simule um Financiamento

Localização Casa / Condomínio em São José dos Campos
Total para Acessórios valores sujeitos a alteração.


Condomínio
1,11

IPTU
1,11

Total / Mês
2,22



Venda

(ITBI, Registro, Escritura e Certidões)
Consulte-nos

Total
569.990,00

DÚVIDAS SOBRE O IMÓVEL
PREENCHA O FORMULÁRIO


Concordo com os Termos e Privacidade
Imóveis Similares